Häuser erhältlich als:
ELK Fertigteilhaus: Ausbauhaus, belagsfertig oder schlüsselfertig
BAUMEISTERHAUS ziegelmassiv: belagsfertig oder schlüsselfertig
Dachvarianten: Walm- Sattel- oder Flachdach
Keller ist Optional bei 4 Einheiten Wohnhaus inklusive
Die Planabbildungen können Sonderausführungen mit Mehrpreise enthalten.
Bungalow ELK Design 124
Beschreibung:
Zimmer: 3
Bad: 1
WC: 1
Kaufpreis ab € 219.770,-
Einfamilienhaus ziegelmassiv Brigitte Aktion 121 m²
Beschreibung:
Zimmer 4
Bad: 1
WC: 2
Kaufpreis ab € 259.900,-
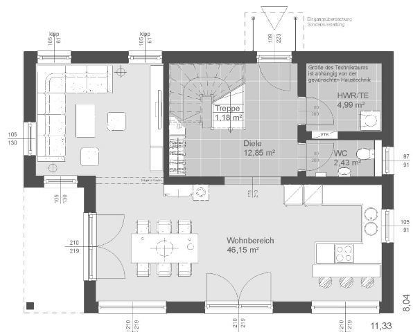
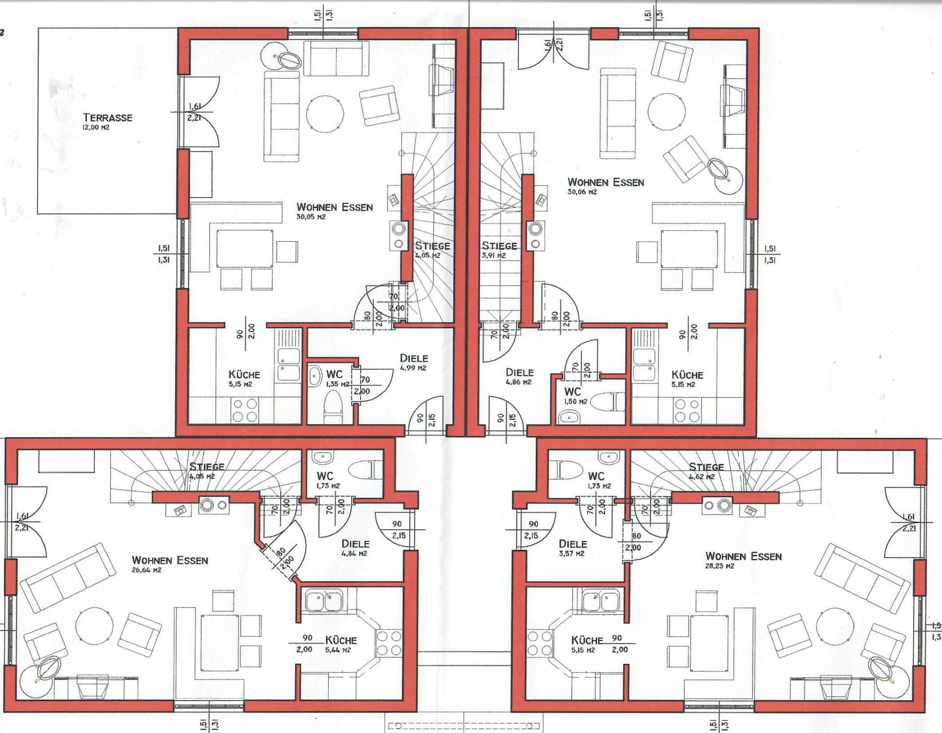
Vier Einheiten Wohnhaus ziegelmassiv Nutzfläche 132,41m²
Beschreibung:
Zimmer 3
Bad: 1
WC: 2
Keller 2 Räume
Kaufpreis ab € 245.900,-
(Preis bezieht sich auf ein Haus, Nutzfläche inkl. Keller)























